











SAW Sachsenweg Mensa +
Objekt :
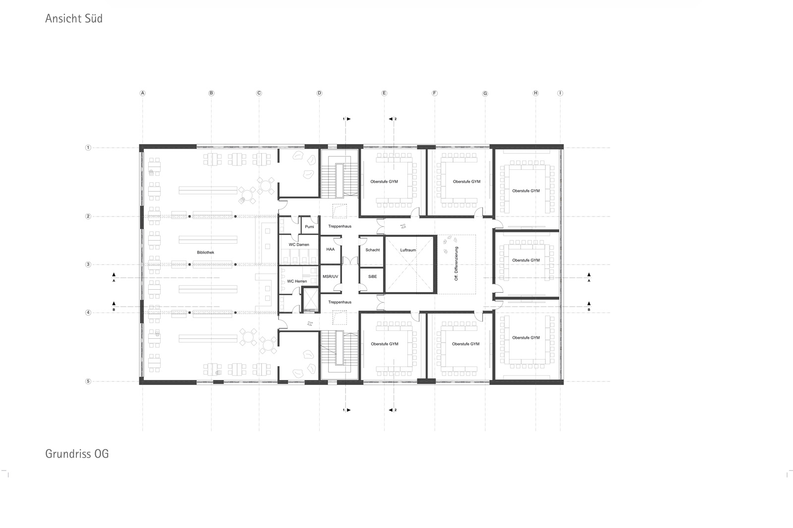
Neubau Mensa+ am Sachsenweg, Hamburg
Bauherr :
SBH Schulbau Hamburg
VOF-Verfahren
06/2014 Zuschlag
Bau- und Planungsdaten :
Leistungsphasen 1-9
Planungsbeginn 09.2014
Baubeginn 05.2016
Fertigstellung 12.2017
Bruttogrundfläche (BGF) Neubau ca.2.270qm
Rauminhalt (BRI) Neubau ca. 9.790qbm
Entwurfsbericht :
Ausgehend von dem Gedanken, die neue Mensa als gemeinsames Gebäude für die 3 Schulen am Standort - Gymnasium Ohmoor, Stadtteilschule Niendorf und Grundschule Sachsenweg - zu nutzen, ist der Neubau so platziert, dass die Mensa sich gleichermaßen zu allen Richtungen in den Campus öffnet und seine Funktion als "Herz" bzw. Zentrum für den gesamten Campus wahrnehmen kann. Das im Baufeld liegende Ziegengehege wird auf einen Bereich nord-östlich des Eingangsgebäudes des Gymnasiums verlegt. Das ebenfalls im Baufeld gelegene "Grüne Klassenzimmer" wird gegenüber der in der Mensa befindlichen Bühne neu errichtet.
Neubau Mensa+ am Sachsenweg, Hamburg
Bauherr :
SBH Schulbau Hamburg
VOF-Verfahren
06/2014 Zuschlag
Bau- und Planungsdaten :
Leistungsphasen 1-9
Planungsbeginn 09.2014
Baubeginn 05.2016
Fertigstellung 12.2017
Bruttogrundfläche (BGF) Neubau ca.2.270qm
Rauminhalt (BRI) Neubau ca. 9.790qbm
Entwurfsbericht :
Ausgehend von dem Gedanken, die neue Mensa als gemeinsames Gebäude für die 3 Schulen am Standort - Gymnasium Ohmoor, Stadtteilschule Niendorf und Grundschule Sachsenweg - zu nutzen, ist der Neubau so platziert, dass die Mensa sich gleichermaßen zu allen Richtungen in den Campus öffnet und seine Funktion als "Herz" bzw. Zentrum für den gesamten Campus wahrnehmen kann. Das im Baufeld liegende Ziegengehege wird auf einen Bereich nord-östlich des Eingangsgebäudes des Gymnasiums verlegt. Das ebenfalls im Baufeld gelegene "Grüne Klassenzimmer" wird gegenüber der in der Mensa befindlichen Bühne neu errichtet.
Info Schliessen