













Grundschule Passauer Straße
Objekt :
Neubau 4-zügige Grundschule in München,
mit zwei Einfachsporthallen und Tiefgarage
Bauherr :
Landeshauptstadt München
Vergabeverfahren :
10-12/2017
Zuschlag & Beauftragung Lp 2-5
Machbarkeitsstudie & Bauvoranfrage 02-08/2018
Vorplanung 07/2019-03/2020
Entwurfsplanung 03/2020-04/2021
Bau- und Planungsdaten :
Grundfläche (BGF) Schule ca.7.705qm (oberirdisch)
Grundfläche (BGF) Sport ca.2.140qm
Landschaftsarchitekten :
realgrün Landschaftsarchitekten, München
Entwurf
Der Entwurf orientiert sich an den auf dem Grundstück bestehenden Zwänge. Diese ergeben sich in erster Line durch den bestehenden B-Plan (1216), dem auf dem Grundstück vorhandenen – und zum Teil schützenswerten – Baumbestand sowie die hohe Schallemission durch die angrenzende Passauerstraße und die Heckenstallerstraße.
Um diesen vorrangigen Parametern Rechnung zu tragen, weicht der Baukörper in seiner Typologie von den gängigen Münchener Schulneubauten ab.
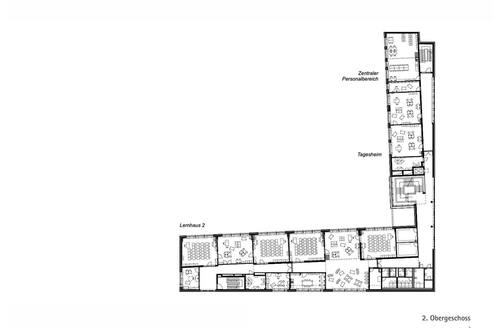
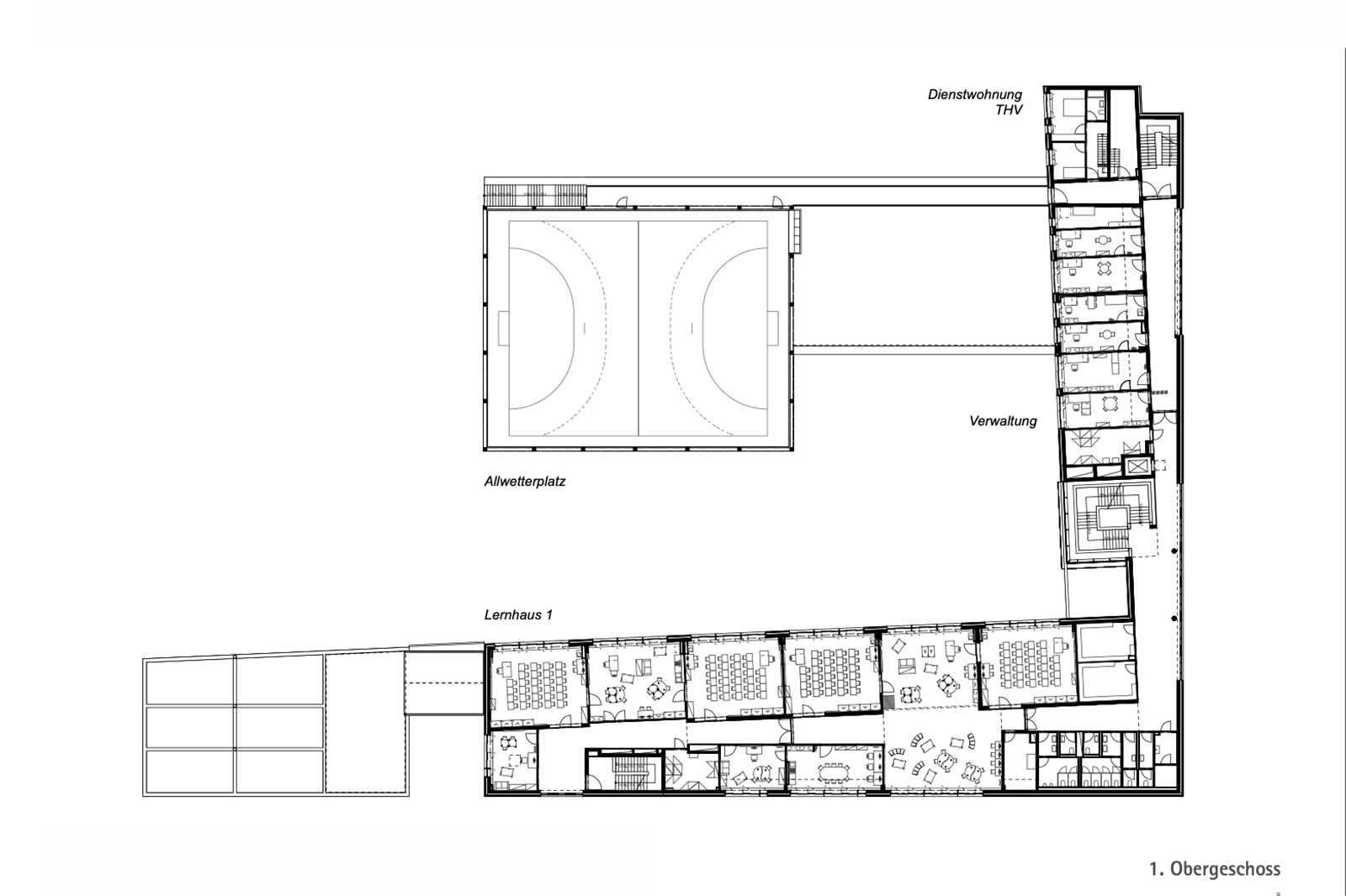
Planerisch kommt nun in diesem Fall ein L-förmiges, 5-geschossiges Gebäude, dessen Schenkel sich zu Passauerstraße und Heckenstallerstraße orientieren, zum Tragen (siehe Lageplan). Durch diese Anordnung ist es möglich, den Schulhof weitestgehend vor den Schallemissionen zu schützen. Weiterhin ist die Raumorganisation so ausgelegt, dass das Gros der dauerhaft genutzten Räume sich zum geschützten Innenbereich orientiert.
Um wiederum die im Westen angrenzende Wohnbebauung vor den Schallemissionen des Schulhofes zu schützen, sind die Turnhallen unter Berücksichtigung der Abstandsflächen so orientiert, dass sie wie eine Schallschutzwand wirken.
Der auf den Turnhallen befindliche Allwetterplatz verfügt sowohl über die notwendigen Fangzäune, (Abstandsflächen zum Nachbarn sind berücksichtigt) als auch über zusätzliche Schallschutzwände nach Norden, Süden und Westen. Der Gebäude-Schenkel an der Passauerstraße wird entlang der Straße in Richtung Süden durch einen eingeschossigen Appendix verlängert. Hier befinden sich die Anlieferung, Feuerwehrzufahrt, Außenlager, Müll und Fahrradstellplätze. Im Eingangsbereich in Richtung Gottfried-Böhm-Weg gelegen befindet sich zudem das Rasenspielfeld.
Neubau 4-zügige Grundschule in München,
mit zwei Einfachsporthallen und Tiefgarage
Bauherr :
Landeshauptstadt München
Vergabeverfahren :
10-12/2017
Zuschlag & Beauftragung Lp 2-5
Machbarkeitsstudie & Bauvoranfrage 02-08/2018
Vorplanung 07/2019-03/2020
Entwurfsplanung 03/2020-04/2021
Bau- und Planungsdaten :
Grundfläche (BGF) Schule ca.7.705qm (oberirdisch)
Grundfläche (BGF) Sport ca.2.140qm
Landschaftsarchitekten :
realgrün Landschaftsarchitekten, München
Entwurf
Der Entwurf orientiert sich an den auf dem Grundstück bestehenden Zwänge. Diese ergeben sich in erster Line durch den bestehenden B-Plan (1216), dem auf dem Grundstück vorhandenen – und zum Teil schützenswerten – Baumbestand sowie die hohe Schallemission durch die angrenzende Passauerstraße und die Heckenstallerstraße.
Um diesen vorrangigen Parametern Rechnung zu tragen, weicht der Baukörper in seiner Typologie von den gängigen Münchener Schulneubauten ab.
Planerisch kommt nun in diesem Fall ein L-förmiges, 5-geschossiges Gebäude, dessen Schenkel sich zu Passauerstraße und Heckenstallerstraße orientieren, zum Tragen (siehe Lageplan). Durch diese Anordnung ist es möglich, den Schulhof weitestgehend vor den Schallemissionen zu schützen. Weiterhin ist die Raumorganisation so ausgelegt, dass das Gros der dauerhaft genutzten Räume sich zum geschützten Innenbereich orientiert.
Um wiederum die im Westen angrenzende Wohnbebauung vor den Schallemissionen des Schulhofes zu schützen, sind die Turnhallen unter Berücksichtigung der Abstandsflächen so orientiert, dass sie wie eine Schallschutzwand wirken.
Der auf den Turnhallen befindliche Allwetterplatz verfügt sowohl über die notwendigen Fangzäune, (Abstandsflächen zum Nachbarn sind berücksichtigt) als auch über zusätzliche Schallschutzwände nach Norden, Süden und Westen. Der Gebäude-Schenkel an der Passauerstraße wird entlang der Straße in Richtung Süden durch einen eingeschossigen Appendix verlängert. Hier befinden sich die Anlieferung, Feuerwehrzufahrt, Außenlager, Müll und Fahrradstellplätze. Im Eingangsbereich in Richtung Gottfried-Böhm-Weg gelegen befindet sich zudem das Rasenspielfeld.
Info Schliessen